
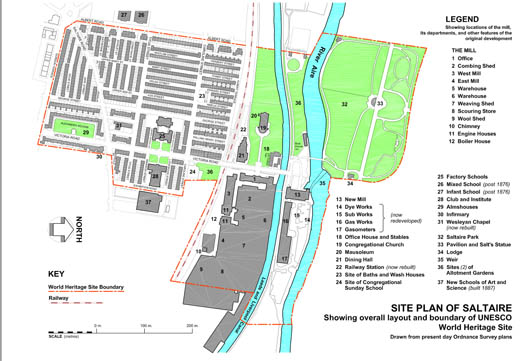
Click here, on on image, to enlarge.
Map, courtesy of Philip Barlow, Nemine Juvante Publications.
| Time-line of Saltaire's construction |
1851 - 1853
|
Salts Mill
Building started in 1851. Mill opened on 20 September 1853, Titus Salt's 50th birthday. |
1854
1854
1854
1854
1854
1854-61
1854-68
1854-68
1854-68 |
William Henry Street
Edward Street
Fanny Street
Herbert Street
Amelia Street
Albert Terrace
Victoria Road
Titus Street
George Street |
| All 1857 |
Helen Street
Whitlam Street
Mary Street
Ada Street |
| 1859 |
Congregational Church |
| 1861 |
Constance Street |
| 1862 |
Shirley Street |
| 1863 |
Bath and wash house |
| All 1868 |
Lower School Street
Upper School Street
Lockwood Street
Mawson Street
Katherine Street
Dove Stree
Jane Street
Albert Road
Jane Street
Harold Place
Gordon Place
Myrtle Place
Fern Place
Daisy Place
New Mill (north side of canal)
Methodist Chapel (Saltaire Road)
School (Victoria Road)
The Hospital (Victoria Road)
Almshouses, Victoria Road |
| Both 1871 |
The Institute
The Park |
| 1876 |
Congregational Sunday School |
| 29 December 1876 |
Titus Salt dies. |
|